Lublin, Szerokie

Dom na sprzedaż

Opis nieruchomości

Komfortowy, gotowy do zamieszkania, dom w świetnej lokalizacji w Lublinie !

Polecam dom w zabudowie bliźniaczej, usytuowany na ponad 3-arowej działce, w dzielnicy Szerokie. Budynek składa się z parteru oraz użytkowego poddasza. Jest w całości podpiwniczony i usytuowany w otoczeniu urządzonego ogrodu, wraz z altaną rekreacyjną. 

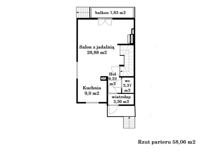
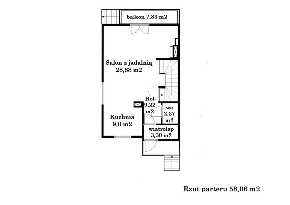
Na pierwszej kondygnacji znajduje się strefa dzienna, która obejmuje przestronny salon z jadalnią, otwartą kuchnię oraz wiatrołap i toaletę. Z salonu widok na zieleń oraz balkon z wyjściem na ogród. W holu znajduje się wygodna klatka schodowa wiodąca do strefy wypoczynkowej, usytuowanej na poddaszu budynku, a także schody prowadzące do garażu i pomieszczeń gospodarczych usytuowanych na najniższej kondygnacji.

Na piętrze znajduje się strefa wypoczynkowa z trzema sypialniami i dużą łazienką. 

Zestawienie powierzchni pomieszczeń PARTERU:

Salon z jadalnią - 28,88 m2
Kuchnia - 9,0 m2 
Wc - 2,37 m2
Klatka schodowa - 5,29 m2
Wiatrołap - 3,30 m2
Hol - 9,22 m2

Łączna powierzchnia parteru wynosi 58,06 m2.

Wielkości pomieszczeń PODDASZA:
Sypialnia 1 - 14,63 m2 (9,08 m2)
Sypialnia 2 - 14,21 m2 (9,26 m2)
Sypialnia 3 - 7,78 m2 (6,97 m2)
Łazienka - 6,62 m 2 
Hol - 4,54 m 2

Powierzchnia poddasza wynosi 47,78 m2, zaś użytkowa 36,47 m2.

Powierzchnia użytkowa domu wynosi: 94,53 m2.

Zestawienie powierzchni pomieszczeń kondygnacji PRZYZIEMIA/PIWNICY:
Garaż - 29,87 m2
Pomieszczenie gospodarcze - 9,78 m2
Kotłownia/Pralnia - 11,16 m2

Łączna powierzchnia domu wynosi: 151,33 m2.

Media i instalacje:
  • instalacja ogrzewania i ciepłej wody zasilana z kotła gazowego (piec jednofunkcyjny z zasobnikiem),
  • instalacja wodociągowa zasilana z sieci miejskiej
  • kanalizacja sanitarna miejska
  • kanalizacja burzowa wraz ze zbiornikami na deszczówkę
  • kominek 12 kW, z rozprowadzeniem ciepła na grzejniki
  • instalacja fotowoltaiczna o mocy 4,74 kW z 2020r.
  • uzdatniacz wody
  • instalacja alarmowa

Najważniejsze odległości:
przystanek MPK - 500 m
sklep Żabka - 500 m
kościół - 1100 m
apteka - 1100 m
przedszkole - 2100 m
szkoła podstawowa nr 50 - 2800 m
dwujęzyczne: przedszkole i szkoła Europejczyk - 2400 m
ul. Wojciechowska - 130 m
ul. Nałęczowska - 1100 m

Atuty: Miejsce cechuje kameralna atmosfera i zadbane otoczenie. W okolicy dominuje niska zabudowa jednorodzinna. Lokalizacja zapewnia dobry dostęp do infrastruktury - w pobliżu znajdują się: sklep spożywczy, siłownia, plac zabaw, trasy spacerowe, przystanek MPK. 

Zapraszam do kontaktu i bliższego zapoznania się z przedmiotem oferty :)

Informacje dodatkowe:
Treść niniejszego ogłoszenia nie stanowi oferty handlowej w rozumieniu kodeksu cywilnego (art. 66 i następnych k.c.), ale jest zaproszeniem do współpracy. Opis, zawarty w ogłoszeniu, jest sporządzany na podstawie oględzin nieruchomości oraz informacji uzyskanych od właściciela i może on podlegać aktualizacji.
Oferta stanowi ofertę na wyłączność. Nie znajdziesz jej nigdzie więcej. Koszty dodatkowe pokrywane przez Kupującego to koszty notarialne, sądowe oraz podatek PCC, o ile Nabywca nie korzysta ze zwolnienia.
 

Nota prawna

Opis oferty zawarty na stronie internetowej sporządzany jest na podstawie oględzin nieruchomości oraz informacji uzyskanych od właściciela, może podlegać aktualizacji i nie stanowi oferty określonej w art. 66 i następnych K.C.

Szczegóły oferty

Symbol oferty GHN-DS-253
Powierzchnia 151,33 m²
Powierzchnia użytkowa 94,53 m²
Powierzchnia działki 323 m²
Liczba pokoi 4
Rodzaj domu bliźniak
Technologia budowlana beton komórkowy
Liczba pięter w budynku 1
Wymiary działki 15 x 21,6 m
Garaż w poziomie piwnicy
Stan prawny Udział
Okna PCV
Instalacje ELEKTRYCZNA, WODNA, GAZOWA
Balkon duży
Liczba balkonów 1
Zagosp. działki zagospodarowana
Kształt działki prostokąt
Pokrycie dachu blachodachówka
Stan budynku do zamieszkania
Podpiwniczenie tak
Ogrodzenie działki metalowe
Rok budowy 2015
Gaz jest
Woda tak
Dojazd asfalt
Otoczenie zabudowa jednorodzinna
Ogrzewanie C.O. GAZOWE
Odległość do komunikacji publicznej [m] 500 m
Odl. do sklepu [m] 500 m
Odl. do szkoły [m] 2 800 m
Odl. do przedszkola [m] 2 100 m
Prąd w budynku
Kanalizacja miejska

Lokalizacja

Kalkulator kredytowy

PLN
%
Wysokość raty

Kalkulator kosztów

PLN
PLN
PLN
PLN
PLN
PLN
%
PLN
Podatek od czynności cywilno-prawnych
Taksa notarialna (opłata notarialna)
VAT od taksy notarialnej (opłaty notarialnej)
Wniosek do WKW
VAT od wniosku do WKW
Prowizja agencji nieruchomości
VAT od prowizji agencji nieruchomości
Wypisy aktu notarialnego - około
RAZEM (cena + opłaty)

Napisz do nas

Proszę wypełnić to pole
Proszę wypełnić to pole
Proszę wypełnić to pole
Proszę wypełnić to pole
Trwa wysyłanie...

Ta strona wykorzystuje pliki cookies w celach statystycznych oraz w celu dostosowania naszych serwisów do indywidualnych potrzeb klientów. Zmiany ustawień dotyczących plików cookie można dokonać w dowolnej chwili modyfikując ustawienia przeglądarki. Korzystanie z tej strony bez zmian ustawień dotyczących cookies oznacza, że będą one zapisane w pamięci urządzenia.

rozumiem